Lieux d'activités
L’atelier
Paris (75)







Implantation
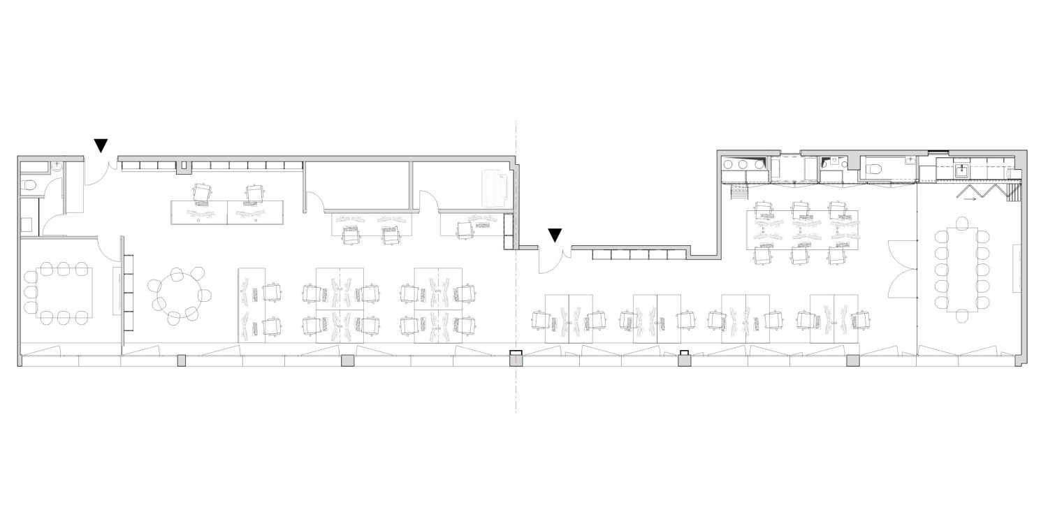
La cité artisanale des Amandiers (bâtiment tertiaire remarquable construit à la fin des années 60) est située dans la première ZAC parisienne (1973). Au sein de quartier résidentiel, il garantit une activité créative et productive pour maintenir une mixité. L'agence est située au troisième étage et occupe plusieurs lots réunis en un espace filant. Profitant de 3.80m de hauteur sous plafond et d'un plan libre de porteur, les bureaux sont tous situés le long de la façade bandeau sur 36m de linéaire. Nous avons révélés les matériaux de la construction initiale en ponçant la dalle béton laissée brute. Le plafond à caisson apparait entre les luminaires, les brasseurs d'air et les panneaux rayonnants. Les meubles ont été dessinés sur mesure et réalisés en CP de bouleau. La brique des noyaux d'ascenseurs est laissée apparente. Les parois vitrées sont réalisées en acier vernis brut.
Fiche technique
Programme
Agence d'architecture
Localisation
Paris (75)
Maîtrise d’ouvrage
HEMAA
Calendrier
livré - 2025
Surfaces
220 m²
Coût
NC
Photographies / Perspectives
Mathilde Tistchenko
Structure
- Béton, Dalle à caissons
Performance
- Réhabilitation. utilisation du bois et matériaux français
